Fotografie Casa Latte, Sea View
Latte - Corso A. Toscanini, 79
A 1,1 km da Spiaggia di Latte, 19 km da Centro Congressi Grimaldi Forum Monaco e 20 km da San Siro Co-Cathedral, Casa Latte, Sea View è un alloggio posizionato a Latte. Questa struttura mette a disposizione un balcone, il parcheggio privato gratuito e il WiFi gratuito.
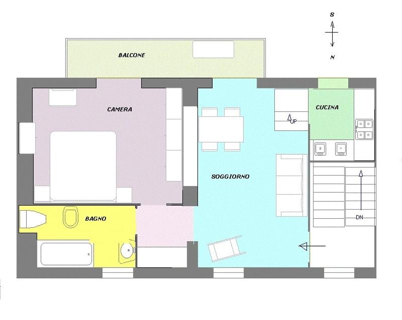
Questo appartamento con 1 camera da letto prevede un soggiorno con TV a schermo piatto, una cucina con utensili e 1 bagno.
Forte di Santa Tecla è a 20 km da questo appartamento, mentre Bresca Square si trova a 20 km dalla struttura.
Check-in dalle 16:00 e termina alle 10:00.
La struttura non è disponibile per feste di addio al nubilatocelibato o simili.
Struttura gestita da un host privato
Appartamento con 1 Camera da Letto. The apartment features 1 bedroom, 1 bathroom and a kitchen. The apartments kitchen is available for cooking and storing food. This apartment has a washing machine, heating, a flat-screen TV and a balcony. The unit offers 2 beds.
Ulteriori informazioni sull´offerta it - Latte - Casa Latte, Sea View, sul sito troverete le opinioni dei vacanzieri e le date disponibili il nostro partner.
Numero di licenza: 008065-LT-0120
Prenota ora
L´offerta del nostro partner: Booking.com BG.6203267









